En la esquina de José Hernández y José Ingenieros se preparan tres locales comerciales que destinarán al alquiler. Según pudo averiguar este medio, las obras estarían terminadas en aproximadamente un mes.
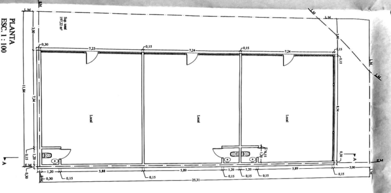
Se trata de una edificación total de 197,22 metros cuadrados emplazada en un terreno de 299 metros cuadrados. Cada uno tendrá un frente de unos siete metros vidriados, por unos 8,5 metros de fondo.
Los locales no tienen todavía un rubro de preferencia. Los directores del proyecto explicaron que serán las propias necesidades de la zona las que determinen qué rubros se instalarán. A pocos metros ya funciona Distinción y próximamente abrirá sus puertas la nueva sucursal de Supermercados Arco Iris.

El emprendimiento se encuentra en una zona de fuerte auge residencial, en las cercanías del barrio cerrado Miraflores y de los barrios Cantegril y Don Mateo, ambos con una población que aumenta considerablemente. Además, en el área se están construyendo algunas edificaciones en formato de propiedad horizontal.
Una fuente cercana a los desarrolladores destacó la importancia del crecimiento exponencial de Funes a la hora de tomar la decisión, y destacó el valor de la calle José Hernández como arteria comercial: “Es un paso de fuerte tránsito con mucho movimiento. Más que una decisión estratégica, tiene que ver con la realidad local de que cuando se pavimentó esta calle, comenzaron a llegar los locales”.













